首頁
關於
進程
設計
兼融景觀
教研環境
社會責任
導覽影片
國立臺灣大學人文館興建工程
首頁
關於
進程
設計
兼融景觀
教研環境
社會責任
導覽影片
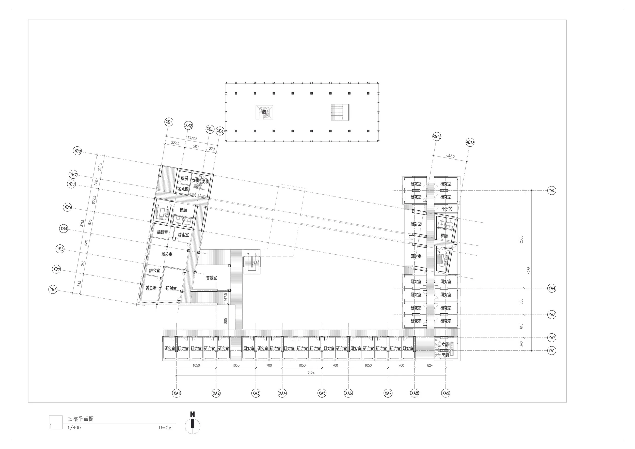
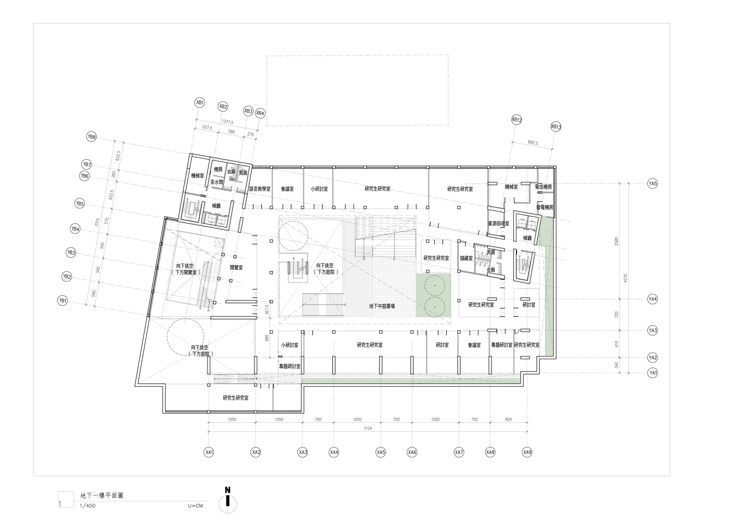
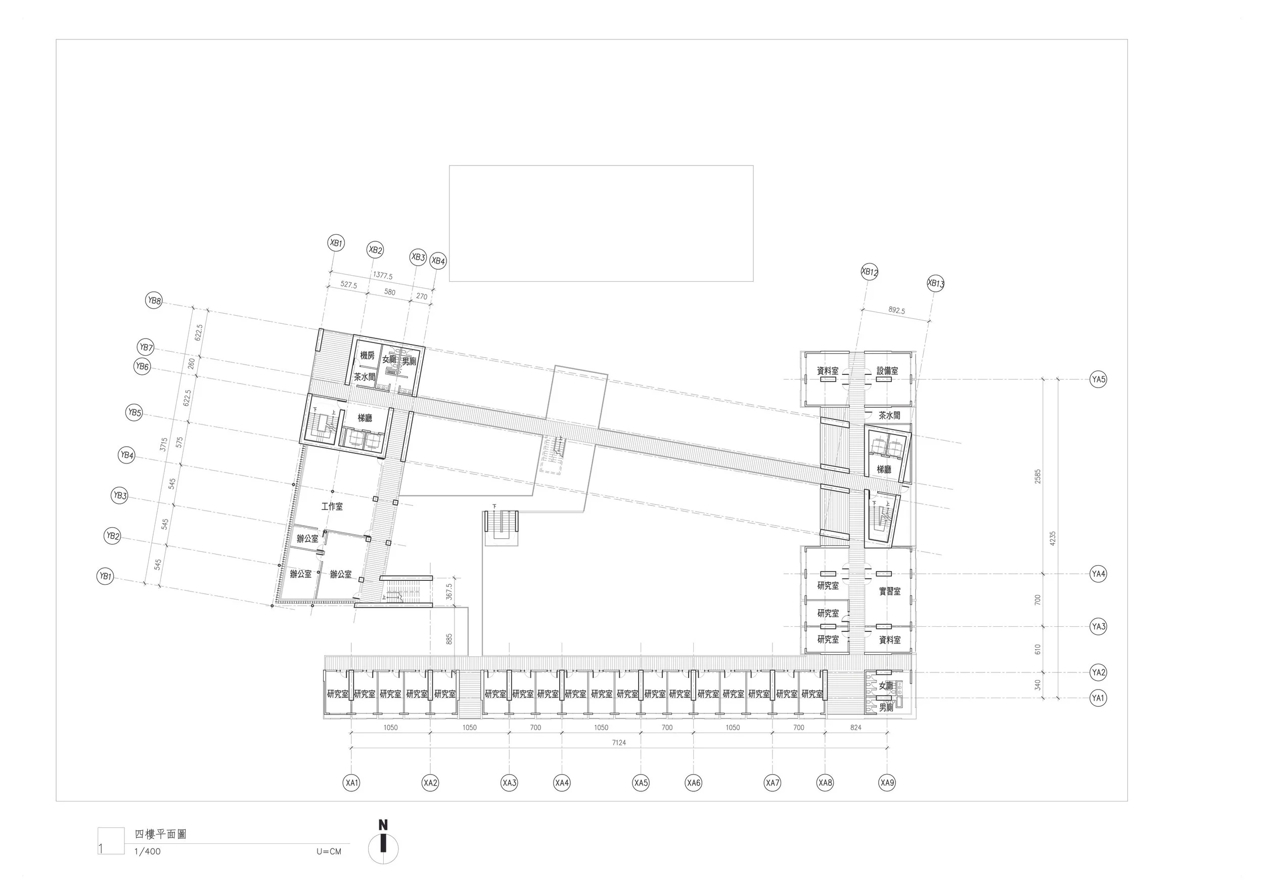
圖說
SCROLL DOWN
圖說
人文館各層平面圖說
人文館各向立
面圖說
閱讀更多故事
<規畫歷程
形塑未來校園景觀>